목차
이번에는 서울시 중구 신당4동 321번지 일대 재개발 현황 및 정보를 정리해서 알려드리겠습니다.
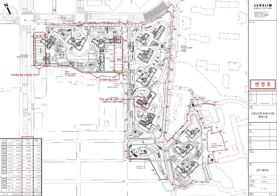
1. 신당8구역 재개발





| 사업구분 | 재개발 |
| 정비구역 명칭 | 신당제8구역 |
| 대표지번 | 서울특별시 중구 신당4동 321번지 일대 |
| 정비면적 | 58,651.3m2 (17,742평) |
| 토지등소유자 | 545명 (조합원 566명) |
| 건축 용적률 | 244% |
| 층수 | 최고28층 / 지하4층 |
| 예상 세대수 | 1,213세대 (분양 1,030세대 / 임대 183세대) |
신당8구역은 서울시 중구에 위치한 지역으로, 2004년부터 재개발 사업이 진행되고 있었지만, 더디게 진행되다가 2016년 이후부터 정비사업이 활발히 진행되고 있는 곳입니다.
이 구역은 서울 도심 중심부에 위치해 있어 교통이 매우 편리하고, 청구역(5호선, 6호선) 바로 역세권에 위치해 있으며, 신당역(2호선, 6호선), 약수역(3호선, 6호선)까지 도보로 이동이 가능합니다.
인근에 서울청구초등학교(서울 상위 44%), 대경중학교(서울 상위 13%) 등이 가까운 위치에 있고, 신당동 학원가와 가깝기 때문에 교육환경이 좋습니다. 그리고 주변 재개발 사업들도 완료되면, 생활환경이 더 좋아질 것으로 생각됩니다.
또한, 신당8구역 주변에는 다양한 문화시설들이 있어, 다양한 쇼핑, 외식, 여가 시설들이 밀집해 있어 풍부한 문화생활을 누릴 수 있습니다. 청계천과 동대문디자인플라자(DDP) 등 서울의 대표적인 관광명소들도 가까이 있습니다.
신당8구역은 2007년 5월 25일 정비구역으로 지정된 이후, 2016년 12월 12일 조합설립이 인가되었으며, 2018년 11월 27일 사업시행이 인가되었습니다.
특히, 정비구역 변경과 시공사(DL이앤씨→포스코이앤씨) 선정 등의 문제로 인해 사업 진행이 지연되었지만, 최근 2023년 2월 18일 포스코 건설(오티에르 브랜드)이 새로운 시공사로 선정되면서 사업이 본격화되고 있습니다.
현재 신당8구역 관리처분인가를 받기 위해서, 2023년 10월 13일 신청 서류를 중구청에 접수했으며, 올해 안으로 통과 여부가 결정될 것이라고 합니다.
이 지역은 서울 중심부에 위치해 있어, 재개발이 완료되면 주거 환경 개선과 함께 중구 지역 발전에도 기여할 것으로 기대됩니다.
2. 정비사업 진행단계
| 진행 단계 | 진행 날짜 | Remark |
| 추진위원회승인 | 04.12.30 | |
| 정비구역지정 | 07.05.25 | |
| 조합설립인가 |
16.12.12 | |
| 사업시행인가 |
18.11.27 | |
| 시공자선정 | △ | |
| 관리처분인가 | △ | 2023년 10월 신청 |
| 철거신고 | X | |
| 착공신고 | X | |
| 일반분양승인 | X | |
| 준공인가 | X | |
| 이전고시 | X | |
| 조합해산 | X | |
| 조합청산 | X |
3. 관련된 뉴스기사
| 트리플역세권에 새 아파트 나온다…신당8구역, 관리처분 잰걸음 [부동산360] 2023-08-17 06:59 | 헤럴드경제 | 박자연 기자 내달 2일 관리처분인가 총회 지난달 면적 및 가구 수 조정 인근 단지 3.3㎡당 4~5000만원 거래 출처 https://mbiz.heraldcorp.com/view.php?ud=20230816000803 |
| 새 아파트 적은 신당동…재개발 훈풍 분다 [MONEY REAL ESTATE] 2023.12.22 11:23 | 매일경제 | 정다운 기자 속도가 가장 빠른 곳은 신당8구역이다. 지난 10월 13일 관리처분인가 신청 서류를 중구청에 접수했다. 출처 https://www.mk.co.kr/economy/view.php?sc=50000001&year=2023&no=960958 |
| 신당8구역 재개발조합 통합디자인 용역업체 선정 2024.04.30 16:09 | 하우징헤럴드 출처 https://www.housingherald.co.kr/news/articleView.html?idxno=47994 |
4. 포스팅을 마치며
이번 포스팅은 서울특별시, 리치고, 부동산지인, 네이버부동산, 아실, 카카오맵 사이트를 참고하여 작성했습니다.
부동산 공부방
#재개발#재건축#교통망#지하철#아파트#임대업#분양#경기#인천#서울
open.kakao.com