목차
이번 포스팅에서는 서울특별시 영등포구 국회대로 29길13 유원제일1차아파트 일대 (신속통합기획) 재건축 정보 현황 및 관련된 정보를 알려드리겠습니다.
1. 유원제일1차 재건축




| 사업구분 | 재건축 |
| 정비구역 명칭 | 유원제일1차아파트 주택재건축정비사업조합 |
| 대표지번 | 서울 영등포구 국회대로 29길13 유원제일1차아파트 일대 |
| 정비면적 | 17,693.6m2 |
| 용도지역 | 준공업지역 |
| 토지등소유자 | 402명 (조합원 347명) |
| 건축 용적률 | 300% |
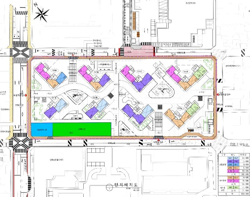
| 층수 | 최고25층 / 지하3층 |
| 세대수 | 554세대 (분양 483세대 / 임대 71세대) |
유원제일1차는 서울 영등포구 국회대로 29길13 일대 1983년에 건립된 360세대의 노후된 아파트였습니다. 현재 재건축을 통하여 신축아파트 단지로 탈바꿈하는 중이며, 지역 주민들의 삶의 질과 경제 활성화에도 기여할 것으로 기대됩니다.
유원제일1차 주변에 당산역(2호선, 7호선), 영등포구청역(2호선, 5호선)이 위치해 있어 지하철 접근성이 매우 좋습니다. 그리고 다양한 버스 노선이 운행되고 있어 강남, 여의도, 영등포 등 주요 지역으로의 접근성이 매우 좋습니다.
또한, 다양한 상업시설(마트, 병원, 은행 등)과 공원(한강공원, 당산공원 등)이 위치해 있어 생활 편의성이 높고, 초등학교, 중학교, 고등학교가 도보 거리 내에 위치해 있어 자녀 교육 환경이 양호합니다.
2022년 4월 13일에 관리처분인가를 받았고, 2022년 7월부터 이주작업을 시작하여 현재는 철거 및 착공을 진행 중인 것으로 추정됩니다. 2024년 8월쯤 일반분양을 진행할 예정이라고 합니다. 입주시기는 미정입니다.
대림산업(DL이앤씨, 이편한세상)이 공사를 진행하고 있으며, 전용 51~84㎡ 총 8개 타입을 분양하고, 44㎡타입 임대주택 71세대가 배치됐습니다. 총 554세대 중 483세대를 분양하며, 이 중에서 136세대가 일반분양될 것으로 추정됩니다.
대림산업은 시그니처 수경시설 휴게공간, 그랜드워터풀 적용, 한강 조망을 누리는 루프탑 테라스, 스카이라운지, 공기청정 환기 시스템 적용 등을 적용해 명품단지로 건설 중이라고 합니다.
2. 정비사업 진행 단계
| 진행 단계 | 진행 날짜 | Remark |
| 정비구역지정 | O | |
| 추진위원회승인 | 09.09.03 | 동의률 58% |
| 조합설립인가 |
17.11.24 | 동의률 86.31% |
| 사업시행인가 |
20.01.02 | 동의률 98.25% |
| 시공자선정 | 20.09.27 | 디엘이앤씨(주) |
| 관리처분인가 | 22.04.13 | |
| 철거신고 | 진행 중 | |
| 착공신고 | 진행 중 | |
| 일반분양승인 | X | |
| 준공인가 | X | |
| 이전고시 | X | |
| 조합해산 | X | |
| 조합청산 | X |
3. 관련된 뉴스기사
| 당산 유원제일1차, 재건축 시공자에 대림산업 2020.10.07 12:28 | 한국주택경제 | 심민규 기자 서울 영등포구 당산동 유원제일1차아파트가 재건축 시공을 담당할 협력사로 대림산업을 낙점했다. 유원제일1차아파트 주택재건축정비사업조합(조합장 손제균)은 지난 27일 개최한 총회에서 대림산업을 시공자로 선정했다고 밝혔다. 출처 https://www.arunews.com/news/articleView.html?idxno=22379 |
| 영등포 유원제일1차 재건축 '9부 능선' 넘었다 2022.04.18 17:55 | 서울경제 | 노해철 기자 4년 5개월만에 관리처분 인가 7월 이주하고 연내 철거·착공 최고 25층 554가구로 탈바꿈 출처 https://www.sedaily.com/NewsView/264QQQGQUE |
| 당산동 신통기획 본격 시동, 일대 재건축 현황은? 2023.11.06 09:02 | 리얼캐스트 | 김영환 기자 진행 상황이 가장 빠른 건 유원제일1차입니다. ’22년 4월에 관리처분계획인가를 받고 이주에 착수했습니다. 현재는 철거를 준비 중입니다. 관리처분계획에 따르면 지하 3층~지상 25층, 8개 동, 554세대 규모 아파트를 조성할 예정입니다. 출처 https://www.rcast.co.kr/news/articleView.html?idxno=23260 |
| “드디어 새 아파트 생긴다”...들썩들썩 ‘이 동네’ 다시 보이네 2024.04.18 05:55 | 매일경제 | 송동우 필진 당산동 노후아파트 정비사업 현대3차 최종안전진단 통과 유원제일 1·2차, 한양도 재건축 효성1·2차 통합리모델링 추진 서울시 ‘서남권 대개조’ 후광도 출처 https://www.msn.com/ko-kr/news/other/%EB%93%9C%EB%94%94%EC%96%B4-%EC%83%88-%EC%95%84%ED%8C%8C%ED%8A%B8-%EC%83%9D%EA%B8%B4%EB%8B%A4-%EB%93%A4%EC%8D%A9%EB%93%A4%EC%8D%A9-%EC%9D%B4-%EB%8F%99%EB%84%A4-%EB%8B%A4%EC%8B%9C-%EB%B3%B4%EC%9D%B4%EB%84%A4/ar-BB1lOgOo |
4. 정비사업 추가설명
https://posifuse.tistory.com/12
재개발 절차·용어·비교 (민간재개발, 공공재개발, 공공주도정비사업)
1. 재개발·재건축 필수 용어 재개발 조합원재개발이 예정된 특정 지역에 소유권을 가진 주민들이 모여서 결성한 조합의 구성원입니다. 입주권재개발 사업으로 인해 철거된 주택에 대한 보
posifuse.tistory.com
https://posifuse.tistory.com/13
재건축·재개발 주의사항 (임장, 현금청산, 입주권, 취득세, 분양신청 등)
이번 포스팅에서는 재건축·재개발 정비구역 투자 시 주의할 점에 대해서 알려드리겠습니다. 1. 정비구역 임장 시 주의사항정비구역 내 부동산뿐만 아니라 모든 부동산을 구입하기 전에는 반
posifuse.tistory.com
https://posifuse.tistory.com/14
재개발·재건축 관리처분인가 전후 조합원 분담금·총투자금 계산 방법 (전용면적·공급면적·계
이번 포스팅에서는 전용면적·공급면적·계약면적·서비스면적 등의 차이점에 대해 설명드리고, 관리처분인가 전후 조합원 분담금·총투자금 계산 방법을 알려드리겠습니다. 1. 아파트 면적에
posifuse.tistory.com
https://posifuse.tistory.com/17
신속통합기획, 모아타운, 모아주택(소규모 재개발·재건축, 자율·가로주택정비사업) 설명
서울시에서 추진하는 사업 중에 신속통합기획과 모아타운이 있으며, 이를 통해 기존보다 더 신속하게 재개발 사업을 진행하여 빠르게 주택을 공급하는 것을 목표로 합니다. 두 사업의 가장 큰
posifuse.tistory.com
5. 포스팅을 마치며
이번 포스팅은 서울특별시, 카카오맵, 리치고, 부동산지인, 네이버부동산, 아실 사이트를 참고하여 작성했습니다.
부동산 공부방
#재개발#재건축#교통망#지하철#아파트#임대업#분양#경기#인천#서울
open.kakao.com